BELLE VUE MER • GRAND JARDIN EXPLOITABLE • PIÈCES DE VIE SPACIEUSES • PISCINABLE
Située à deux pas du village de La Turbie et à seulement quelques kilomètres de Monaco, cette villa de 6 pièces à rénover offre un potentiel exceptionnel avec sa vue dominante sur les corniches et la mer.
Édifiée sur un terrain agrémenté d’un beau jardin exploitable, la propriété offre la possibilité de créer un véritable espace extérieur de détente, avec piscine possible.
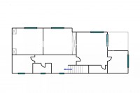
La villa développe 178 m² habitables, complétés par 137 m² d’annexes comprenant :
Un garage de 80 m² permettant de stationner plusieurs véhicules,
Une chaufferie de 12,64 m²,
Un local aménageable de 44,70 m² avec fenêtre, offrant un excellent potentiel d’aménagement (salle de sport, studio indépendant, atelier, etc.).
La maison se compose actuellement ainsi :
Rez-de-jardin : vaste salon lumineux, grande salle à manger attenante à la cuisine, ouvrant de plain-pied sur le jardin.
Étage : trois chambres spacieuses, dont une suite parentale avec salle de bains, dressing et terrasse privative, ainsi qu’un bureau et une salle d’eau.
Entresol : accès direct au grand garage et aux espaces techniques et annexes.
L’ensemble de la propriété est à remettre au goût du jour, mais offre une structure saine, des volumes généreux et un potentiel rare dans ce secteur recherché.
CLASSE ENERGIE : G.
Montant estimé des dépenses annuelles d'énergie pour un usage standard, établi à partir des prix de l'énergie de l'année 2021 : 8 080 € ~ 10 950 €.
Les honoraires d'agence seront intégralement à la charge du vendeur.
1 123 500 €
Vente - Maison 6 Pièces, La Turbie
86389302 - La Turbie
Informations
| Reference | 86389302 |
| Tout type de Bien | Maison |
| Ville | La Turbie |
| Pièces | 6 |
| Surf. habitable | 222m² |
| Taxe Foncière | 2176 €/an |
| Prix | 1 123 500 € |
Financer ce bien
| Montant de l'achat |
€
|
| Votre apport |
€
|
| Montant emprunté |
| Durée | Taux | Mensualité |
|---|---|---|
| 10 ans | 2.80% | |
| 15 ans | 2.80% | |
| 20 ans | 2.85% | |
| 25 ans | 2.95% | |
| 30 ans | 2.95% |
Meilleures conditions fournies par ArtemisCourtage.com. Sous réserves d'acceptation du dossier. Taux actualisés au 01 Septembre 2025.
Frais de notaire
| Montant de l'achat |
|
| Emoluments TTC du notaire | 11 461 € |
| Droits et taxes | 66 361 € |
| Emoluments de formalités et débours | 1 360 € |
| Total | 79 182 € |